Items adding...
Enhance your order with these recommended add-ons.
Description
Product Features:
- 5' x 8' Aluminum & Glass Greenhouse Kit
 - Lifetime Warranty
 - Wind Load to Exceed100mph
 - Snow Load to Exceed 35lb per sq
 - 1/8” Clear Tempered Safety Glass
 - Passive Solar Ridge Vent
 - Heavy Duty, Aluminum Full-Lite Door
 - Butyl Sealants Throughout
 - The Frame and hardware are Aluminum
 
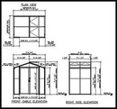
The Sago greenhouse is a great option for people who are only looking for a small area to grow in. This state-of-the-art Greenhouse is exactly 7’-8 ¾” wide by 5’-4” deep with an overall height of 7’-11 ¼” (see blueprint for full details). The Sago Greenhouse is a smaller version of our Palmetto Greenhouse except the Sago includes a double door in the front gable to allow for maximum spacial use inside. We offer a full line of accessories if you purchase direct. Upon purchase of any of our greenhouse kits we offer full phone support, blueprints and a manual. Feel free to watch any of our many videos on these products before purchasing we have a full installation video available so you can see the quality of the product and easy of construction.
       